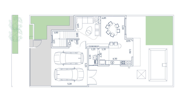
A Incorporadora SETPAR CONSTRUTORA E INCORPORADORA LTDA. construirá, sob a égide da Lei nº 4.591/64 e pelo sistema de construção por empreitada global, também denominado a preço fechado, reajustado (§ 2º do art. 55 da Lei nº 4.591/64), unidades residenciais unifamiliares do tipo sobrado, em lotes individualizados, no Empreendimento SetSul Residences. Cada unidade contará com aproximadamente 180 m² de área construída, distribuída em 2 (dois) pavimentos, composta por 3 (três) dormitórios, sendo 1 (uma) suíte, 2 (dois) banheiros, 1 (um) lavabo, sala de estar e jantar integradas à cozinha, área de serviço e vaga(s) de garagem, além de infraestrutura para aquecimento e jardim com paisagismo, tudo conforme projeto aprovado e Memorial Descritivo do empreendimento. A construção das unidades será realizada em regime de empreitada global, com preço total pactuado e sujeito a reajustes na forma do contrato e da legislação vigente. As condições de pagamento, prazos de entrega, especificações construtivas, acabamentos e demais características constarão do Instrumento Particular de Compra e Venda e do Memorial Descritivo. Financiamento O financiamento imobiliário, se utilizado, será contratado diretamente pelo cliente junto à instituição financeira de sua preferência, por meio de linha de crédito com recursos do Sistema Brasileiro de Poupança e Empréstimo – SBPE. A análise e aprovação do crédito, bem como valores de entrada, prazos, taxas de juros, custo efetivo total (CET), seguros, encargos, formas de amortização e demais condições serão de responsabilidade exclusiva da instituição financeira, avaliadas individualmente, podendo ser alteradas a qualquer tempo, sem aviso prévio. A SETPAR não garante a aprovação do crédito, o enquadramento em linhas ou programas de financiamento, nem a manutenção das condições eventualmente informadas pelos agentes financeiros. Imagens, ilustrações e acabamentos As imagens, perspectivas e demais ilustrações deste material têm caráter exclusivamente ilustrativo, por se tratar de publicidade de pré-lançamento em fase de implantação, podendo sofrer ajustes e alterações, inclusive quanto à fachada, ao paisagismo e ao desenho arquitetônico. A vegetação ilustrada aparece em porte adulto, estágio que somente será atingido alguns anos após a entrega das unidades. As casas serão entregues com os acabamentos previstos no Memorial Descritivo, que integrará o Instrumento Particular de Compra e Venda. Móveis, acessórios de produção e decoração, equipamentos e objetos de uso cotidiano (tais como talheres, copos, vasos, bancadas, grill, toalhas), bem como revestimentos de piso e parede, forro de gesso, sancas, luminárias, painéis e armários, são meramente ilustrativos e não compõem o contrato de aquisição do imóvel. Registros, prazos e documentos Incorporação imobiliária e demais atos relativos ao empreendimento registrados sob os R.06 a R.32 da matrícula nº 118.126, do 2º Oficial de Registro de Imóveis de São José do Rio Preto/SP. As informações relativas ao registro da incorporação, matrícula, alvará de construção, prazos de entrega e previsão de obtenção do habite-se constarão de forma clara e expressa no respectivo Instrumento Particular de Compra e Venda e estarão disponíveis para consulta no plantão de vendas.